Apartament de vânzare, Budapesta VI, sector

Pagina principală » Apartament de vânzare, Budapesta VI, sector » Apartament de vânzare, Budapesta VI, sector

249 900 000 Ft

€656 026
Datele anunţătorului

Gombár János

Scrierea de mesaj
Mesajul trebuie să aibă cel puţin 10 caractere.
Descriere

Textul tradus

Textul original
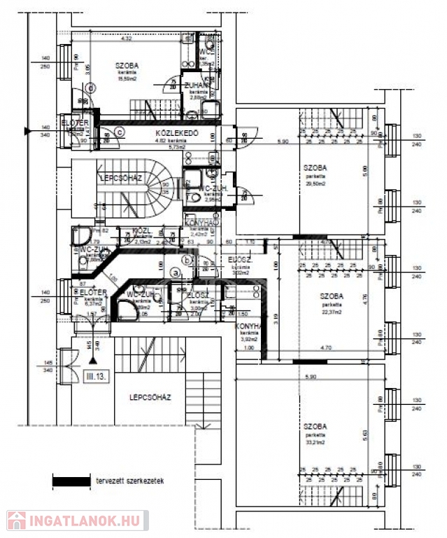
Eladó négy lakrészes luxus ingatlan a belvárosban!

Liftes társasház 3. emeletén négy apartmanlakásból álló, összesen 140 m2 + 50 m2 galériával rendelkező ingatlan kerül értékesítésre.
2020-ban teljeskörű felújításon esett át. Projekt része volt a víz és elektromos hálózat, fa nyílászárók, hideg-meleg burkolatok és világítótestek cseréje, galériák kiépítése.
az ideális hőmérsékletet padlófűtés és inverteres klímák biztosítják.
Az apartmanok biztonságáról elektromos okos-zárak gondoskodnak.

Minden lakrész különböző dizájnnal, saját konyhával és fürdőszobával rendelkezik.

Mivel az ingatlan a legfelső szinten helyezkedik el, így rendkívül világos. Ablakok utcára és a belső udvarra is néznek.

Amennyiben kérdése van, vagy szeretné megtekinteni keressen

Közlekedés kiváló, Deák-Ferenc tér néhány perc, de gyalogosan vagy e-rollerrel is minden könnyen elérhető.
Budapest pezsgő világa egy karnyújtásnyira! Szórakozás, kultúra, művészet egyaránt fellelhető, közelben Gozsdu udvar, színházak, Operaház.

Kiváló vétel befektetőknek, AIRBNB és parkolási engedély átíratható.
Ha nem befektetési céllal vásárolna, akkor is nézze meg, hiszen több generáció részére is alkalmas a lakás.

Megtetszett? Nincs más dolga, mint hívjon, egyeztessünk időpontot és nézze meg!

Hitelre vásárló ügyfeleinknek teljeskörű, ingyenes, bank semleges ügyintézéssel állunk rendelkezésére.

Irodánk ügyvédje kedvező díjszabással vállalja az adásvételi szerződés elkészítését.

Amennyiben még el kell adnia ingatlanát, kérem, tiszteljen meg bizalmával, segítek eladni!

Sz.P.

Datele Apartament

Etajul 3

Cărămidă

Electrică

Renovat

Confort de lux

Mai vechi de 50 ani

140 metru pătrat

Nespecificat

Propriu

Nespecificat

de stradă

Hartă