Apartament de vânzare, Györ

Pagina principală » Apartament de vânzare, Györ » Apartament de vânzare, Györ

139 000 000 Ft

€366 455
Datele anunţătorului

Unger-Takács Anikó

Scrierea de mesaj
Mesajul trebuie să aibă cel puţin 10 caractere.
Descriere

Textul tradus

Textul original
Győr történelmi belvárosától pár percre, egy igazán egyedi lakást ajánlok figyelmébe:
Ikonikus épület, műemlékjellegű barokk lakóház, parkettás kapuszárnyakkal, mely 2020-ban teljes átalakításon, modernizáláson esett át.
A második emeleten, a tetőtérben kialakított lakás stílusos, csendes, minden részletében hangulatos és nagyon otthonos! PRÉMIUM minőségű anyagokkal kivitelezett, nagy terekből áll.

A lakás bruttó alapterülete 211 m2, nettó 125 m2, melyhez kapcsolódik egy 11 m2-es, nyugalmas tetőterasz.
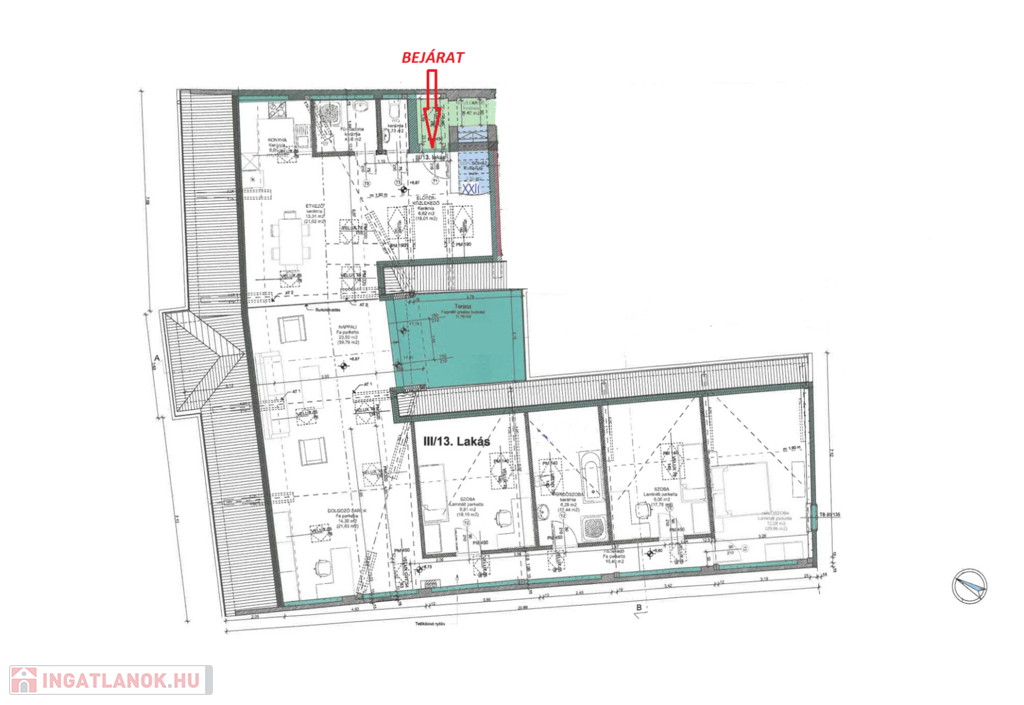
Elosztása szerint egy impozáns, nagyméretű, egybenyitott nappali–konyha–étkező térrel, három hálószobával, két fürdőszobával, külön wc-vel, praktikusan kialakított gardróbszobával és egy nyugalmas belső udvarra néző tetőterasszal rendelkezik. A hirdetésben a fotók között található alaprajz részletes tájékoztatást ad az elrendezésről és a méretekről.

Főbb műszaki paraméterek:
• Modern, hűtő-fűtő klíma
• Energiatakarékos kondenzációs Vaillant gázkazán (fűtés, melegvíz)
• Kiváló minőségű burkolatok és szaniterek
• Egyedi, beépített konyha, magas minőségű konyhagépekkel
• Rengeteg a tetőtéri ablak a természetes fény miatt
• Jól összehangolt belső világítás a hangulat kedvéért
• Beépített szekrények és méretre szabott egyedi bútorok (ezek egyéni megbeszélés tárgyát képezik a vételáron felül)

Parkolás:
A ház előtt a parkolás ingyenes, mindig van hely.
200 méterre a lakástól 3 gépkocsi számára mélygarázs is eladó, akár egyenként is megvehető. (A hirdetési ár ezt nem tartalmazza)

Ez a lakás azonnal beleszeretős!
Eleganciát, kényelmet, minőséget, egyediséget sugall, olyan hely, ahol jó élni.

Győr-Újváros belvároshoz közeli része mára lassan ismét visszakapja régi státuszát, újra épített szép házaival, visszatér a polgári környezetbe. A sorozatos fejlesztések teszik dinamikusan fejlődő városrésszé. Valamikor a Kossuth Lajos utca volt az 1-es főút Győrön átvezető tengelye. A korábbi századokban a város meghatározó polgárai voltak az újvárosiak, akik kereskedelemmel, kézművesiparral, hajózással foglalkoztak. Ennek emlékét őrzi a burcsellákra hasonlító, a lakás nappali fagerendájának szerkezete is, de ezt élőben kell látni és átérezni!

Tiszta, rendezett társasház! Pároknak, családoknak vagy akár igényes befektetőknek is szívből ajánlom. Komoly érdeklődők jelentkezését várom, időpontegyeztetéssel rugalmasan megtekinthető.
Legyen ez az Ön álomotthona!
(További képekért és információkért kérem hívjon!)

Datele Apartament

Nespecificat

Cărămidă

Circulară

Excelent

Confort dublu

Nespecificat

125 metru pătrat

Nespecificat

Nespecificat

Nespecificat

Nespecificat