Apartament de vânzare, Györ

Pagina principală » Apartament de vânzare, Györ » Apartament de vânzare, Györ

62 520 750 Ft

€164 247
Datele anunţătorului

Edvi Zsuzsanna

Scrierea de mesaj
Mesajul trebuie să aibă cel puţin 10 caractere.
Descriere

Textul tradus

Textul original
Ideális választás családok számára: új építésű, erkélyes lakás kertvárosi környezetben, Győr belvárosától mindössze 10 percre
Szitásdomb II.lakóparkban épülő, A+ energetikájú, prémium minőségű lakás kiváló kivitelezőtől

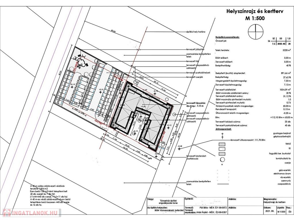
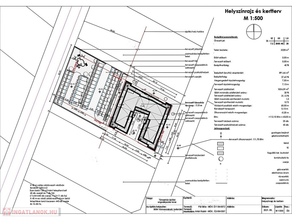
Győr belvárosától 10 percre, M1 autópálya elkerülő közelében, AUDI-hoz közel a Szitásdomb II. lakóparkban, kertvárosi környezetben épülő 25 lakásos társasházban kínálok magas műszaki tartalommal épülő, prémium minőségű lakásokat.
Nagy múltú, megbízható kivitelező cég.

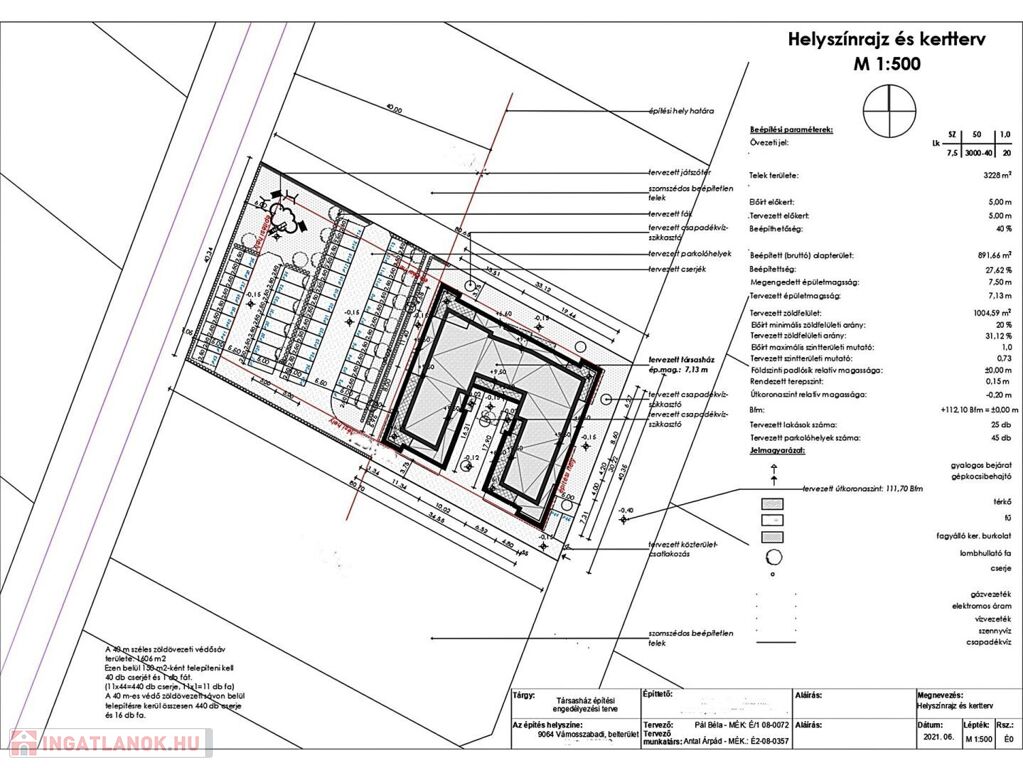
A terület közigazgatásilag Vámosszabadihoz tartozik.

A társasház egy 3228 m2-es hatalmas telekre épült.

Műszaki tartalom:
- 30 cm-es tégla főfalak, a lakások közöttb30 cm vastag hanggátló falazattal
- Válaszfalak 10 cm vtg. válaszfaltéglából készülnek.
- POROTHERM áthidaló gerendák
- 20 cm homlokzati hőszigetelés
- erkélylefedéseknél antracit színű korclemez fedés
- 3 rétegű üveggel ellátott INTERNORM műanyag nyílászárók kívül antracit színben
- FŰTÉS és meleg víz központi HŐSZIVATTYÚS rendszerrel, PADLÓFŰTÉS
- MENNYEZET HŰTÉS, így nincs szükség klímákra
- rejtett dobozos, elektromos alumíníum redőny-előkészítés
- exkluzív üvegkorlát az erkélyen

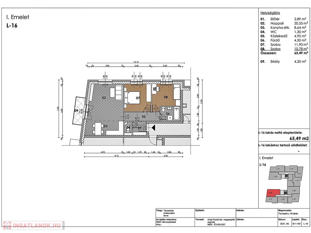
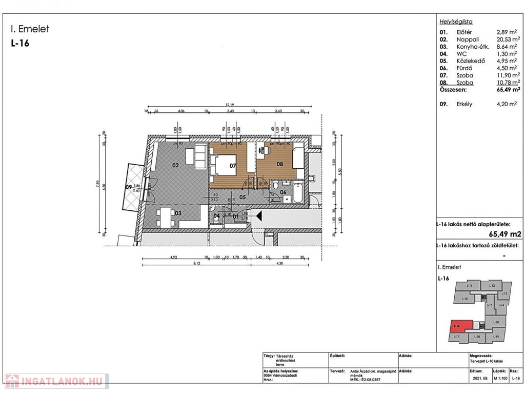
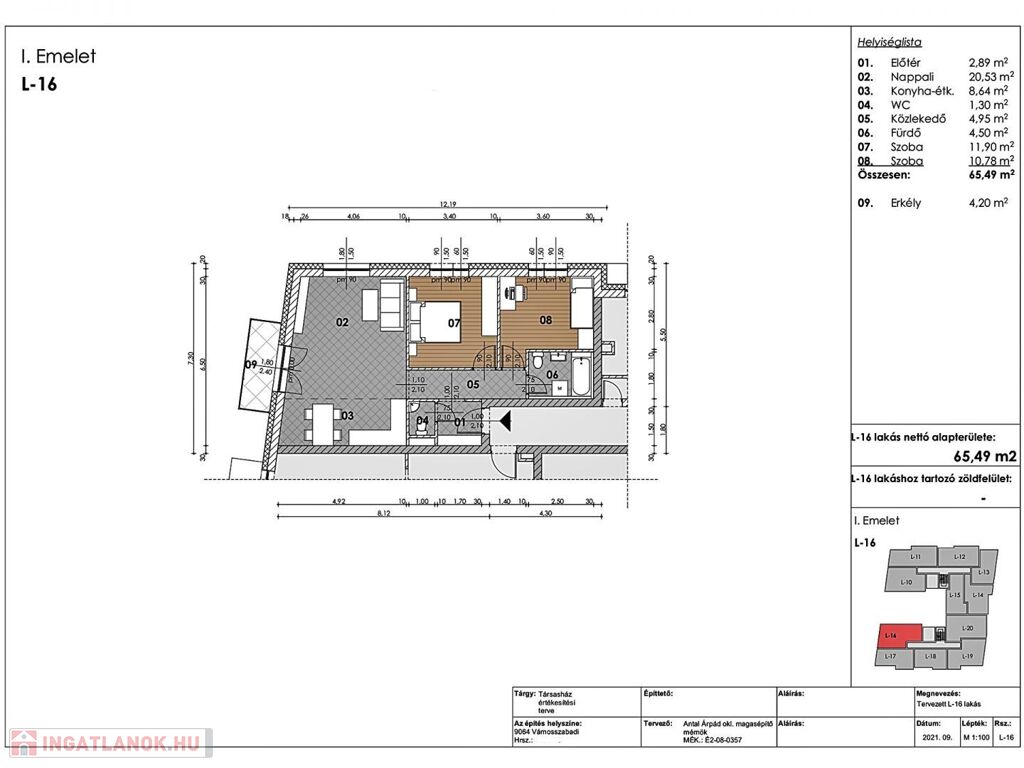
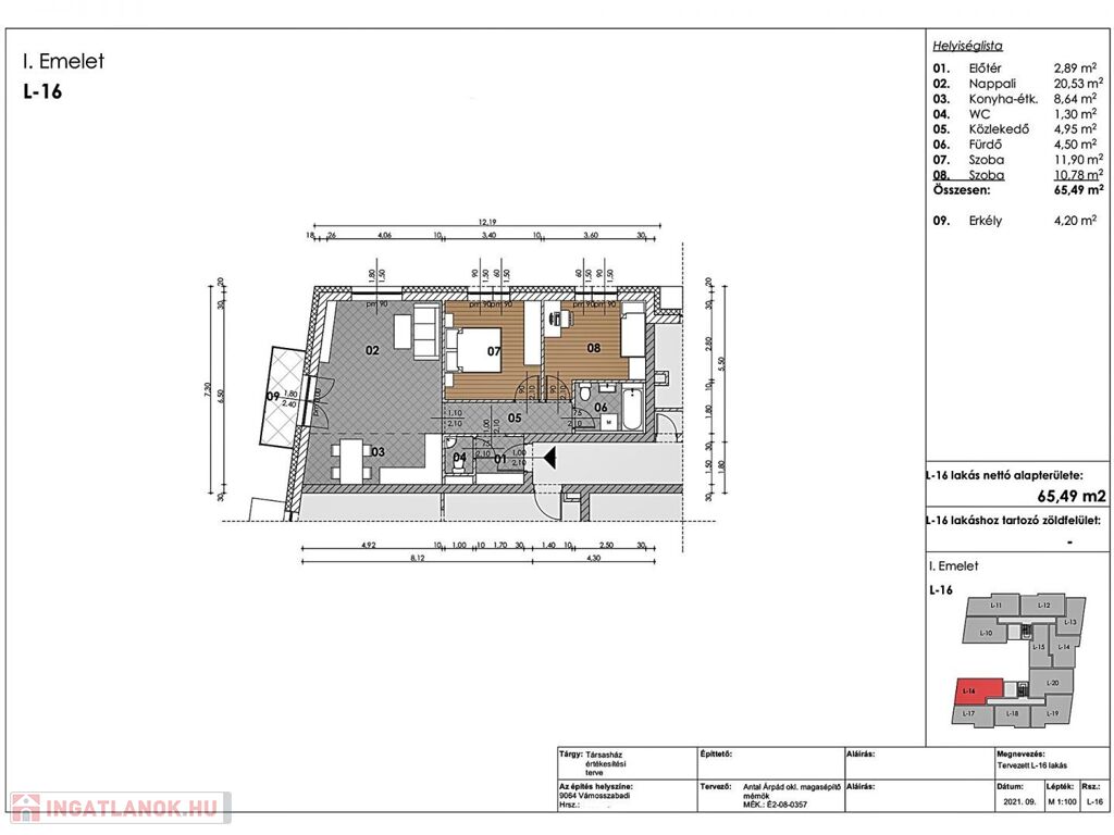
A 65,49 m2-es, 1. emeleti (L16), DNY fekvésű lakás HELYISÉGEI:
Előtér: 2,89 m2
Nappali: 20,53 m2
Konyha-étk: 8,64 m2
Szoba 10,78 m2
Szoba 11,9 m2
Fürdő: 4,5 m2
WC: 1,3 m2
Közlekedő 4,95 m2

A lakáshoz tartozik még 4,2 m2 ERKÉLY.

Az ár emelt szintű fűtéskész állapotra vonatkozik és tartalmazza az 5% Áfát, valamint a telekhányadot.
Kivitelező egyéni megállapodás alapján vállalja a kulcsrakész befejezést is.

Minden lakáshoz kötelező megvásárolni 2 db gépkocsibeállót, melynek darabja 1.000.000 Ft + (27% áfa). A lakáshoz tartozó parkolók száma: P34-P35

Várható átadás: 2026. február

További költségek:
- ügyvédi díj: lakás vételárnak 0,8%-a
- egyszeri 150.000 Ft, az albetétesítéshez, földhivatali eljáráshoz

Amennyiben hitelre van szüksége ingyenes tanácsadással és teljes körű ügyintézéssel állunk rendelkezésére. Minden jelenleg hatályos támogatás igénybe vehető!

A társasház további elérhető lakásai:
L10 – 1. emelet, 61,69 m2 + 4,2 m2 erkély bruttó 59.005.750 Ft
L11 – 1. emelet, 62,45 m2 + 13,91 m2 erkély bruttó 64.199.625 Ft
L16 – 1. emelet, 65,49 m2 + 4,2 m2 erkély bruttó 62.520.750 Ft
L20 – 1. emelet, 68,41 m2 + 6 m2 erkély bruttó 66.054.250 Ft
L21 – 2. emelet, 98,71 m2 + 34,33 m2 erkély bruttó 107.184.375 Ft
L22 – 2. emelet, 92,46 m2 + 22 m2 erkély bruttó 95.654.250 Ft

A lakóparkban kiépítésre kerül: játszótér, óvoda, bölcsőde, orvosi rendelő, szolgáltatók és számos üzlet is.
A csendes kisvárosi környezet, a város és az Ipari Park közelsége, könnyű megközelíthetősége miatt kitűnő választás akár saját lakásnak, akár befektetésnek is.

Nagy az érdeklődés, ne halogassa a megtekintést! Várom hívását!

Datele Apartament

Etajul 1

Nespecificat

Circulară

Mediu

Nespecificat

De construcţie nouă

65 metru pătrat

Nespecificat

Nespecificat

Nespecificat

Nespecificat