Casă de vânzare, Budapesta II, sector

Pagina principală » Casă de vânzare, Budapesta II, sector » Casă de vânzare, Budapesta II, sector

120 000 000 Ft

€312 598
Datele anunţătorului

Kecskeméti Zsolt

Scrierea de mesaj
Mesajul trebuie să aibă cel puţin 10 caractere.
Descriere

Textul tradus

Textul original
Önálló kivitelezési lehetőség!

A rugalmas építő rögtönzött akciója keretén belül lehetősége van társként (E napló szinten) beszállni a kivitelezésbe, oly módon, hogy az egyik lakást ő megtartaná!!!

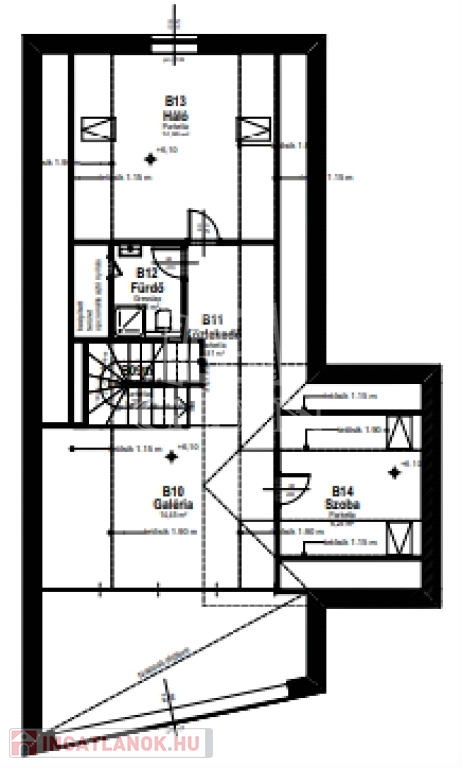
A tájvédelmi körzet szomszédságában elhelyezkedő luxus 311 nm-es lakóépület magában foglal két egymástól külön álló, azonban tetszés szerint egybe is nyitható 2 lakóegységet (melyek nettó alapterülete 158 m2 és 153 m2). A lakások a későbbiekben akár társas házként is funkcionálhatnak.

A lehetőségként kínált közös kivitelezés a közvetlen kertkapcsolattal rendelkező, 158 m2-es lakásra vonatkozik!

Az előrehaladott állapotú építkezés jelenleg 60 %-os készültségnél tart, amely bármikor megtekinthető, megismerve ezáltal a burkolásokat, illetve az átgondolt külső-belső kivitelezési munkálatok előkészítésének magas minőségét. A 20 éves tapasztalattal és számtalan referenciával rendelkező kivitelező a megegyezéstől számítva 4 hónapon belül vállalja a kulcsrakész átadást 60 M forint kivitelezési áron!

Az épület elhelyezkedése DNy-i tájolású, ily módon a hatalmas üvegfelületek páratlan optikai látványt és természetközeli élményt biztosítanak az exkluzív élettérnek!

A jövőbeni költséghatékony fenntarthatóság érdekében a fűtés levegő-hőszivattyús rendszerrel, illetve padló és mennyezet hűtés-fűtéssel kerül beépítésre.

Egyéb extrák:
- elektromos alumínium redőny,
- elektromos szekcionált Hörmann garázskapuk,
- riasztó rendszer kiépítés,
- hűtő-fűtő klíma,
- fürdőkben kiegészítő törölköző szárítók,
- fényezett egyedi beltéri nyílászárók,
- külső üvegkorlát,
- kiépített kaputelefon.

Fűtés:

- elsődleges: hőszivattyú, mennyezeti hűtéssel, illetve padlófűtéssel,

- másodlagos: hűtő-fűtő klíma

Bővebb műszaki tartalmat igény szerint küldök!

Datele Casă

158 metru pătrat

400 metru pătrat

Excelent

Casă familială

Cărămidă

Geotermică

Nespecificat

Confort total

De construcţie nouă

Nespecificat

2 nivele

Nespecificat

Hartă