Casă de vânzare, Budapesta XX, sector

Pagina principală » Casă de vânzare, Budapesta XX, sector » Casă de vânzare, Budapesta XX, sector

79 000 000 Ft

€205 928
Datele anunţătorului

Mudraninec Éva

Scrierea de mesaj
Mesajul trebuie să aibă cel puţin 10 caractere.
Descriere

Textul tradus

Textul original
Befektetők, kivitelezők, figyelmébe ajánljuk!

Pesterzsébet legjobb kertvárosi részén kínálunk megvételre egy nettó 209 nm alapterületű, kétszintes, téglából épült, önálló családi házat 291 nm-es telken. Az ingatlan teljes mértékben felújítandó!

A ház földszinti része a 60-as években épült, a felsőszintet a 80-as évek végén építették rá, jelenleg 2 külön bejáratú lakásra van osztva.

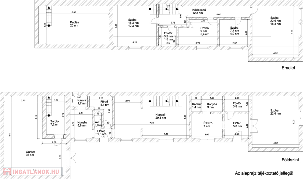
Beosztása:
földszint:
- előtér 5,8 nm,
- étkező 7 nm,
-konyha 3 nm,
-kamra 1,4 nm,
-fürdő 3,8 nm,
-szoba 22,6 nm,
-nappali 29,4 nm,
-fürdő 4,1 nm,
-előtér 1,5 nm,
- kamra 1,7 nm,
- konyha 5,8 nm,
- tároló 7,2 nm,
- garázs 36 nm,
-----------------------
129,4 nm.

Emelet:
-szoba 18,3 nm,
-szoba 4,9 nm,
-szoba 5,4 nm,
-közlekedő 12,3 nm,
-fürdő 1,5 nm,
-szoba 12,3 nm,
-helyiség 25 nm,
-------------------------
79,7 nm.

Amivel segítjük az Ön ingatlanvásárlását:
- ingyenes hitelügyintézés,
- jogi háttér,
- földhivatali ügyintézés,
- energetikai tanúsítvány,
- a vevő számára az ingatlanközvetítés ingyenes.

Irodánk 30 éves szakmai tapasztalattal áll ügyfelei rendelkezésére!

Várom szíves megkeresését!

Datele Casă

209 metru pătrat

291 metru pătrat

De renovat

Casă familială

Cărămidă

Circulară

Gaz

Confort total

Între 21-50 ani

Nespecificat

1 nivel

Nespecificat

Hartă