Casă de vânzare, Debrețin

Pagina principală » Casă de vânzare, Debrețin » Casă de vânzare, Debrețin

139 900 000 Ft

€369 920
Datele anunţătorului

Vida Cintia

Scrierea de mesaj
Mesajul trebuie să aibă cel puţin 10 caractere.
Descriere

Textul tradus

Textul original
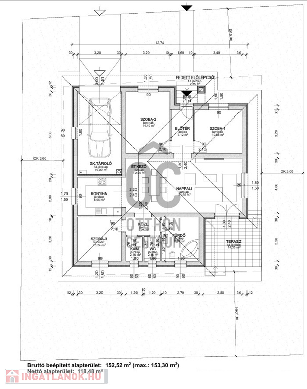
Debrecen Kerekestelep városrészében, csendes, kövezett zsákutcában kínálunk megvételre egy 3 különnyíló szoba + amerikai konyha-nappalis önálló családi házat, 510 m²-es telken, 120 m² hasznos alapterülettel.

Az ingatlan modern műszaki tartalommal és kiváló hőszigeteléssel készül, energiatakarékos megoldásokkal.

Műszaki jellemzők:
-Porotherm 30 tégla
-Padlófűtés minden helyiségben
-A szobákban padlófűtés mellett radiátor is
-Gáz-cirkó fűtés
-3 rétegű hőszigetelt nyílászárók
-12 cm grafitos külső homlokzati szigetelés
-12 cm padlószigetelés
-30 cm födémszigetelés
-Elektromos garázskapu
-Riasztórendszer vezetékelése előkészítve

Az ár tartalmazza:
-2 db klímaberendezés
-Nemesvakolattal ellátott homlokzat
-Térkövezett udvari felületek
-Burkolt terasz

Az ingatlan várhatóan 2026 júniusában készül el, így ideális választás azok számára, akik új építésű, korszerű otthont keresnek nyugodt környezetben.

Bővebb információért vagy megtekintésért keressen bátran!

Datele Casă

120 metru pătrat

510 metru pătrat

Excelent

Casă familială

Nespecificat

Circulară

Nespecificat

Nespecificat!

Nespecificat!

Nespecificat

Nespecificat

Nespecificat