Casă de vânzare, Mestecănești

Pagina principală » Casă de vânzare, Mestecănești » Casă de vânzare, Mestecănești

97 000 000 Ft

€248 826
Datele anunţătorului

Némethné Judit

Scrierea de mesaj
Mesajul trebuie să aibă cel puţin 10 caractere.
Descriere

Textul tradus

Textul original
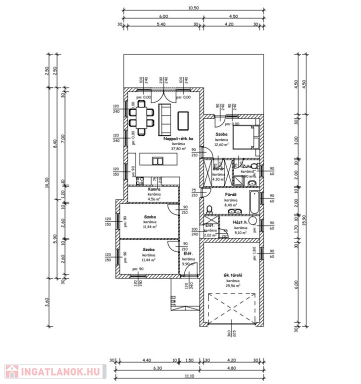
Nyíregyháza, Oros szélén 2026-ban épülő családi ház már foglalható, 139 m2-s garázzsal együtt, három különnyíló szoba, nappali+konyha+étkező egy térben, fürdőszoba+wc, zuhany+wc, kamra, háztartási helység, gardrob a fűtése hőszivattyú mely padlóra vezérelt, nyílászárók fehér három rétegű üveggel. Az ingatlan 3200 m2-s telken fekszik, utcafront 15 m széles, porotherm 30-s téglából épül, külsőleg 15 cm-s nikecel szigetelés, fafödémes, alacsony lejtésű lemeztető mely ATTIKA fallal takarva, automata garázskapu, térkövezett bejárat, utca felől szép kerítés, továbbá tartozik hozzá 40 m2-s nyitott burkolt terasz. Költözni szerződéstől számítva 8-10 hónap!

Datele Casă

139 metru pătrat

3 200 metru pătrat

În construcţie

Casă familială

Cărămidă

Nespecificat

Electrică

Confort total

De construcţie nouă

De curte

Cu parter

Nemobilat

Imagini