Textul tradus
Textul original
Nyíregyháza - Borbánya, 95 + 94 nm-es hasznos alapterületű, ÚJ ÉPÍTÉSŰ, 3 külön nyíló szoba + amerikaikonya - nappalis családi ikerház, dupla garázzsal, pihenőkerttel, csendes, zöldövezeti környezetben, aszfalt út mellet, 500 nm-es telekterülettel eladó!
Főbb paraméterek:
- Phoroterm 30-as téglából épült + 15 cm szigetelés
- mennyezeti szigetelés 30 cm
- cserép fedés
- atracit borítású műanyag nyílászárók
- 3 külön nyíló szoba + nappali
- egyedi gázfűtés - padlófűtés
- 3 db inverteres klíma
- káddal felszerelt fürdőszoba + WC
- zuhanyzóval felszerelt fürdőszoba + WC
- WC külön helyiségben is
- mosókonyha
- burkolata: járólap és lamináltpadló
- erkély
- terasz (20 nm)
- részben térkövezett udvar.
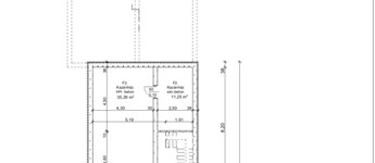
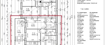
Az ingatlan hasznos lakótere 95 nm, valamint a ház alatt 94 nm-es terület lett kialakítva, ahol helyet kapott egy 2 állásos garázs, mosókonyha, kazánház, és kb. egy 40 nm-es saját igénynek megfelelően (konditeremnek, bulihelyiségnek, wellness részlegnek) kialakítható helyiség. Innen is közvetlen bejárattal megközelíthető a lakótér. A két ingatlan érintkezésénél hanggátló tégla kerül beépítésre, így abszolút nincs áthallás. A privát szféra épített kerítéssel biztosított.
Az igényes kivitelezéssel készült ingatlan 2026.05. hó átadással megvásárolható. Az ár 100%-készültségre vonatkozik. Hívjon, ha szeretné megtekinteni!
Az ingatlan azonosítója: 68952Érdeklődni: +36204394852 Az ingatlan azonosítója: 68952 Érdeklődni: +36204394852
189 metru pătrat
500 metru pătrat
Excelent
Casă familială
Cărămidă
Circulară
Nespecificat
Nespecificat!
Între 1-5 ani
Nespecificat
Nespecificat
Nespecificat
Căutaţi simplu casă, apartament, birou, garaj, teren sau alt tip de imobil noastre date.
Cel Imobiliare.hu este un membru al Grup Imobiliare.
Imobile de vânzare în Ungaria - Imobiliare.hu © 2025 Toate drepturile rezervate