Casă de vânzare, Pincehely

Pagina principală » Casă de vânzare, Pincehely » Casă de vânzare, Pincehely

45 000 000 Ft

€115 533
Datele anunţătorului

Kránicz Éva

Scrierea de mesaj
Mesajul trebuie să aibă cel puţin 10 caractere.
Descriere

Textul tradus

Textul original
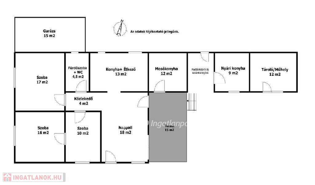
Pincehelyen eladó egy 110 m2-es, téglaépítésű, szépen felújított és kiváló állapotú családi ház, amely egy közel 3000 m2-es telken helyezkedik el. A klasszikus kádárkocka jellegű ingatlant praktikus elrendezésűvé tették: három szoba, nappali,konyha és mosókonyha került kialakításra benne. A ház igényes burkolatokat és festést kapott, a modern, jól felszerelt konyha pedig kényelmes és esztétikus teret biztosít a mindennapokhoz. Az ingatlan gondosan karbantartott, rendezett állapotú, így egy igazán otthonos, azonnal költözhető házról van szó.
Az ingatlan műszaki felújításon is átesett, a villanyvezeték-hálózat teljesen ki lett cserélve, valamint a víz- és szennyvízvezetékek is megújultak. A nyílászárók korszerű műanyag kivitelűek, szúnyoghálóval és redőnnyel felszerelve. A komfortérzetről többféle fűtési lehetőség gondoskodik: gázfűtés, fa tüzelésű központi rendszer, valamint két darab hűtő-fűtő klíma áll rendelkezésre. A padlás szigetelést kapott.
A tágas, 3000 m2-es telek kiváló lehetőséget nyújt kertészkedésre, gazdálkodásra. Az ingatlan állapota valóban kiemelkedően jó, a felújításnak köszönhetően az új tulajdonos számára egy kényelmes, azonnal birtokba vehető otthont kínál. Per- és tehermentes, megfelel az Otthon Start program feltételeinek.

Referencia szám: M324842

Datele Casă

110 metru pătrat

2 985 metru pătrat

Bun

Casă familială

Cărămidă

Individual

Gaz

Confort total

Mai vechi de 50 ani

Nespecificat

Cu parter

Nespecificat

Hartă