Casă de vânzare, Siófok

Pagina principală » Casă de vânzare, Siófok » Casă de vânzare, Siófok

74 900 000 Ft

€192 897
Datele anunţătorului

Szűcs Adrienn

Scrierea de mesaj
Mesajul trebuie să aibă cel puţin 10 caractere.
Descriere

Textul tradus

Textul original
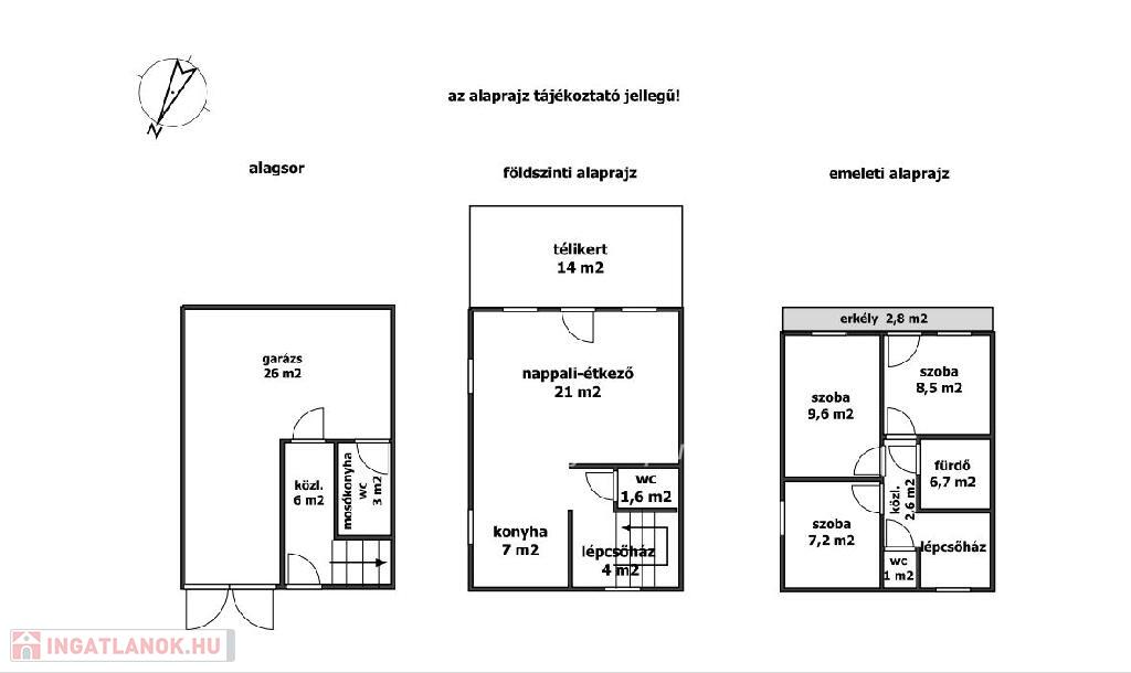
Balaton déli partján, Siófokon kínálok megvételre egy 114 m2-es 3 hálószobás, kertkapcsolatos lakást. Az ingatlan a város nyugodt, családi házas övezetében, Foki-hegyen található, közel oktatási-, egészségügyi intézményekhez, bevásárlási lehetőségekhez, a Balaton-parttól 1,5 km távolságra. A belső háromszintes ingatlan egy 16 lakásos sorház legbelső, szeparált cca 300 m2-es saját használatú kerttel rendelkező lakása, egy alagsori fűtött és egy kertből megközelíthető különálló garázzsal. A ház felújított, korszerűsített, ezért rezsiköltsége alacsony. Aljzat-, födém- oldalfal szigetléssel ellátott. A fűtést egy 3 éve cserélt cirkó kazán adja radiátoros hőleadással, a nappaliban padlófűtéssel. A műanyag nyílászárók szintén újak, redőnnyel, szúnyoghálóval szereltek. A lakás elosztása a következő: az alagsorban található a 26 m2-es garázs, zuhanyzó, wc, mosókonyha. A földszinten amerikai konyhás nappali, étkező, ebből a helyiségből jutunk a 14 m2-es teljesen nyitható télikertbe, azon keresztül a kertbe, valamint egy mosdó. Az emeleten kényelmes méretű, kádas fürdőszoba, külön wc, 3 hálószoba, melyekből az egyik teraszkapcsolatos. A kert hangulatos, intim. Az ingatlan tehermentes, rövid határidővel birtokba vehető! Részletekért, megtekintésért kérem hívjon!

Referencia szám: M290229

Datele Casă

114 metru pătrat

300 metru pătrat

Mediu

Casă de linie

Cărămidă

Circulară

Gaz

Confort total

Între 21-50 ani

Nespecificat

2 nivele

Nespecificat

Hartă