Imobil industrial de închiriat, Györ

Pagina principală » Imobil industrial de închiriat, Györ » Imobil industrial de închiriat, Györ

3 700 000 Ft

€10 139
Datele anunţătorului

Csörnyei Tamás

Scrierea de mesaj
Mesajul trebuie să aibă cel puţin 10 caractere.
Descriere

Textul tradus
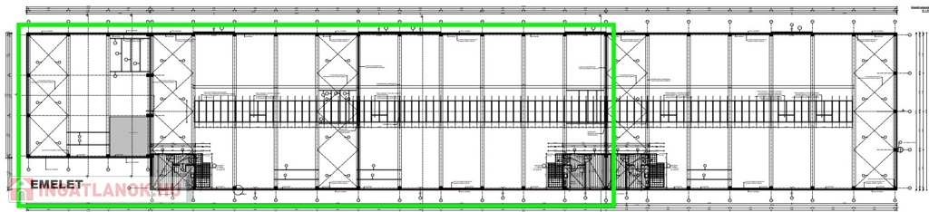
Într-o zonă ușor accesibilă a Parcului Industrial Győr, se vinde o hală de producție/depozit de 1863 m2 (1714 m2 hală de depozitare încălzită, 148 m2 birouri/spațiu social), construită în 2012. Preț de închiriere: 9600,-EUR/lună + TVA + cheltuieli generale + garanție 3 luni. Preț: 06-20/9-966-669. Clădirea construită în 2012 este împărțită în trei părți interconectate (286m2; 648m2; 780m2). Fiecare unitate conține un birou și o unitate socială. În ciuda diviziunii sale, clădirea poate fi utilizată ca un întreg, deoarece cele trei unități pot fi deschise împreună cu uși secționale industriale mari (4,75m x 4,5m), prin care traficul interior este neîntrerupt. REZUMAT PROPRIETATE: - Suprafață totală construită: 1863 m2 - Hala depozit: 1715 m2 - Birouri și spații sociale: 148 m2 INFORMAȚII TEHNICE: - Planșeu: placă de beton armat cu oțel călit la suprafață, cu grosimea de 20 cm - Elemente structurale: stâlpi și grinzi din beton armat - Soclu din beton armat - Pereți din panouri sandwich cu izolație de 10 cm - Pereți din gips-carton în birouri și spații sociale - Acoperiș: tablă trapezoidală din oțel izolată, cu luminatoare - Uși și ferestre izolate termic - Porți de andocare pe 3 niveluri (1 buc. 4,75 m x 3,75 m; 2 buc. 4,75 m x 4,5 m) DETALII: - Capacitate portantă planșeu: 5 tone/m2 - Înălțime sau Înălțime liberă de 1428 m2 suprafață: 6,5 m sau Înălțime liberă de 286 m2 suprafață: 4 m UTILITĂȚI: - Electricitate - Apă (apă menajeră), apă de la rețeaua de apă din fața amplasamentului - Epurare proprie a apelor uzate - Rezervor de apă pentru incendiu - Telecomunicații LOCAȚIE: - Autostrada M1: 6 km, (intersecțiile 112 și 115 sunt la 6 km distanță) - AUDI: 2 km - Centrul orașului Győr: 6 km - Budapesta: 116 km - Viena: 135 km - Bratislava: 93 km Proprietatea este situată în Parcul Industrial Győr, în partea de est a orașului, într-o zonă bine deservită cu transport public și accesibilă fără restricții de greutate. Győr este al șaselea oraș ca mărime din Ungaria, cu o populație de aproape 130.000 de locuitori. Fiind centrul de greutate industrial al regiunii, parcul industrial găzduiește peste 100 de companii pe o suprafață de peste 200 de hectare. Numărul de persoane angajate aici depășește 7.000. Activitățile companiilor producătoare prezente sunt răspândite pe un spectru larg, dintre care industria auto este cea mai importantă. Cel mai mare și mai important jucător din categorie este AUDI. Contact: 06-20/9-966-669 Tamás Csörnyei Expert imobiliar certificat / MSc in Real Estate REAL ESTATE 4 YOU Ltd.

Textul original
A Győri Ipari Park, jól megközelíthető részén, 2012-ben épült, 1863 m2-es (1714 m2-es fűthető raktár csarnok, 148 m2-es iroda/szociális felület), gyártó/raktár csarnok eladó.
Bérleti díj: 9600,-EUR/hó+ÁFA+rezsi+3 havi kaució
Érd.: 06-20/9-966-669

A 2012-ben épült épület három egymással összefüggő részre tagolódik (286m2; 648m2; 780m2). Mindegyik egységben iroda és szociális egység megtalálható.
A tagolódása ellenére az épület egyben is használható, mivel a három egység nagyméretű (4,75m x 4,5m) ipari szekcionált kapukkal egybe nyitható, amiken keresztül zavartalan a belső közlekedés.

INGATLAN ÖSSZEFOGLALÓ:
- Épület összterület: 1863 m2
- Raktár csarnok: 1715 m2
- Iroda és szociális részek: 148 m2
TECHNIKAI INFORMÁCIÓK:
- Padló: 20 cm vastag felület keményített acélhajbeton lemez
- Szerkezeti elemek: vasbeton oszlopok és gerendák
- Vasbeton lábazat
- Szendvicspanel falak 10 cm-es szigeteléssel
- Gipszkarton falak az irodákban, valamint a szociális helyiségekben
- Tető: szigetelt acél trapézlemez, bevilágító ablakokkal
- Hőszigetelt nyílászárók
- 3 db szintbeli dokkoló kapu (1 db 4,75 m x 3,75 m; 2db 4,75 m x 4,5 m)
RÉSZLETEK:
- Padló terhelhetősége: 5 tonna/m2
- Magasság
o 1428m2-es terület tiszta magassága: 6,5 m
o 286 m2-es terület tiszta magassága: 4 m
KÖZMŰ:
- Elektromos áram
- Víz (házi vízmű), vezetékes víz a telek előtt
- Saját szennyvíz kezelés
- Kiépített tűzi víz tározó
- Telekommunikáció
ELHELYEZKEDÉS:
- M1 autópálya: 6 km, (112-es és a 115-ös csatlakozás 6 km-re található)
- AUDI: 2 km
- Győr központ: 6 km
- Budapest: 116 km
- Bécs: 135 km
- Pozsony: 93 km

Az ingatlan a Győri Ipari Parkban, a város keleti oldalán, tömegközlekedéssel jól ellátott, súlykorlátozás nélkül megközelíthető részén található. Győr a hatodik legnagyobb magyar város közel 130.000 fős lakossággal. Az ipari park a térség ipari súlypontjaként több mint 200 hektáros területen ad otthont 100-nál is több cégnek. Az itt foglalkoztatottak száma meghaladja a 7.000 főt. Széles spektrumon helyezkedik el a jelen lévő gyártó cégek tevékenysége, melyekből az autóipar a kiemelkedő. a kategória legnagyobb és legfontosabb szereplője az AUDI.

Érd.: 06-20/9-966-669
Csörnyei Tamás Okleveles ingatlanszakértő / MSc in Real Estate INGATLAN 4 YOU Kft.

Datele Imobil industrial

Mediu

Altceva

Nespecificat

1 863 metru pătrat

Nespecificat