Imobil industrial de închiriat, Györ

Pagina principală » Imobil industrial de închiriat, Györ » Imobil industrial de închiriat, Györ

2 850 000 Ft

€7 459
Datele anunţătorului

Csörnyei Tamás

Scrierea de mesaj
Mesajul trebuie să aibă cel puţin 10 caractere.
Descriere

Textul tradus

Textul original
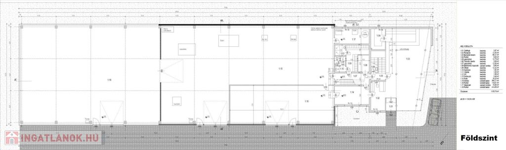
Győr-Szabadhegy modern, ipari környezetben, 2.684 m2-es telken elhelyezkedő, 1321 m2-es, fűthető felépítmény, (941 m2 gyártó, raktár csarnok, műhely, valamint 380 m2 iroda, bemutató terem és szociális részek) kiadó.
Bérleti díj:: 7 000,-EUR/hó+ÁFA
Kaució: 3 havi bérleti díj
Érd.: 06-20/9-966-669

A felépítmény 2006-ben épült, eredeti funkciója gyártó üzem. Az épület magába foglal egy gyártó csarnokot, kiszolgáló raktárt, műhelyt, bemutató termet és iroda/szociális részt.

INGATLAN ÖSSZEFOGLALÓ:
- Telekméret: 2.684m2
- Épület összterület: 1 321 m2
- Gyártó/raktár csarnok és műhely: 941 m2
- Iroda és szociális részek: 380 m2
TECHNIKAI INFORMÁCIÓK:
- Padló: 20 cm vastag vasbeton
- Szerkezeti elemek: acél oszlopok és gerendák
- Szendvicspanel falak 10 cm-es szigeteléssel
- Szendvicspanel tetőszerkezet 12 cm-es szigeteléssel
- Gipszkarton falak az irodákban, valamint a szociális helyiségekben
- Hőszigetelt nyílászárók
- 3 db szintbeli dokkoló kapu (4m x 4m)
RÉSZLETEK:
- Padló terhelhetősége: 5 tonna/m2
- Magasság: 6,9 m
- Fűtés: Gázkazán,
- Melegvíz: Gázbojler
- Hűtés: klíma
KÖZMŰVEK:
- Áram: 3*100A
- Gáz
- Víz
- Csatorna:
ELHELYEZKEDÉS:
- M1 autópálya: 5 km
- AUDI: 7 km
- Győr központ: 4 km
- Budapest: 116 km
- Bécs: 135 km
- Pozsony: 93 km

Az ingatlan a Győr-Szabadhegyen található a város délii oldalán. Győr a hatodik legnagyobb magyar város közel 130.000 fős lakossággal.
Széles spektrumon helyezkedik el a jelen lévő gyártó cégek tevékenysége, melyekből az autóipar a kiemelkedő. a kategória legnagyobb és legfontosabb szereplője az AUDI.

Datele Imobil industrial

Mediu

Altceva

Nespecificat

1 321 metru pătrat

Nespecificat